羽曳野市羽曳が丘7丁目中古戸建new
|
| 所在地 | 大阪府羽曳野市羽曳が丘7丁目1-6 |
|---|---|
| 交通 | 近鉄南大阪線 藤井寺駅 バス(羽曳が丘7丁目 乗18分 停歩1分) |
| 築年月 | 2015年12月 | 新築/中古 | 中古 |
|---|---|---|---|
| 面積 | 計測方式 | ||
| バルコニー | 向き | ||
| 建物階数 | 地上2階 | 部屋階数 | |
| 建物構造 | 木造 | ||
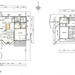
| 敷地全体面積 | 延べ床面積 | 202.46m² | |
| 間取内容 |
3SLDK+3SSLDK |
||
| 駐車場 | 空有 | 取引態様 | 専属 |
| 引渡/入居時期 | 相談 | 現況 | 居住中 |
| 地目 | 宅地 | 用途地域 | 第一種低層住居専用 |
| 都市計画 | 市街化区域 | 地勢 | |
| 土地面積 | 297.54m² | 土地面積計測方式 | 公簿 |
| 建ぺい率 | 50% | 容積率 | 100% |
| 土地権利 | 所有権 | 接道状況 | 一方 |
| 接道方向1 | 西 | 接道間口1 | 14.9m |
| 接道種別1 | 公道 | 接道幅員1 | 11.3m |
| 周辺環境 | |||
| 設備・条件 | 都市ガス 公営水道 排水下水 駐車場有 | ||
| 物件番号 | 260404 | ||
| 自社物 | 自社物 | 状態 | 売出中 |
| 特記事項 | 居住中のため案内時予約必須。 売却理由:単純売却 |
||
Loading...
※物件掲載内容と現況に相違がある場合は現況を優先と致します。
![]()
戸屋ハウジング
〒584-0035 大阪府富田林市谷川町3-13
TEL 0721-25-2589 FAX 0721-25-4867
営業時間 AM10:00~PM5:30 定休日 毎週水曜日
宅建免許番号: 大阪府知事 (7) 第044107号








